微信咨询
服务热线:
139 1292 2525
嘉瑞首页
关于嘉瑞
无尘厂房装修
效果图
施工图片
施工视频
无尘车间装修
1级无尘车间
10级无尘车间
100级无尘车间
1000级无尘车间
10000级无尘车间
10万级无尘车间
30万级无尘车间
100万级无尘车间
施工图
施工视频
实验室装修
效果图
施工图片
施工视频
空调安装工程
消防改造工程
图片
视频
装修动态
联系嘉瑞
4
装修项目
您的位置:
首页
->
装修项目
->
空调安装工程
->
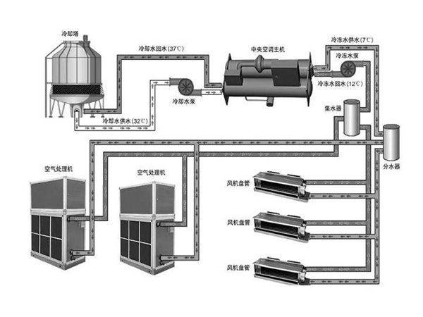
半集中式洁净空调系统
半集中式洁净空调系统
半集中式洁净空调系统
分散式洁净空调系统
集中式洁净空调系统
[上一个:无尘车间装修施工视频]
[下一个:分散式洁净空调系统]
半集中式洁净空调系统
详情说明